Методы охлаждения, применимые к конкретному электродвигателю, обозначаются специальной буквенно-цифровой маркировкой. Буквенная комбинация IC с добавлением других букв и цифр характеризует сам двигатель и тип его охлаждения. Маркировка может быть как полной, так и сокращенной. Рассмотрим далее основные обозначения типов охлаждения для трехфазных асинхронных электродвигателей.
В случае полного обозначения в маркировке имеются буквы IC и 3 либо 5 букв (или цифр), которые располагаются в чередующемся порядке. При сокращенном обозначении после букв IC следуют 2 или 3 цифры (либо буквы).
Пример полной маркировки: IC8A6W7. Пример сокращенной маркировки: IC06.
IC00 - IC0A0
Свободная конвекция

IC01 - IC0A1
Самоциркуляция

IC11 - IC1A1
Самоциркуляция, впускной трубопровод

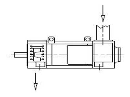
IC06 - IC0A6
Циркуляция путем осевого монтажа, имеется независимый входной компонент

IC06 - IC0A6
Циркуляция путем осевого монтажа, имеется независимый входной компонент

IC06 - IC0A6
Циркуляция, имеется независимый компонент

IC16 - IC1A6
Циркуляция, имеется независимый компонент, предусмотрен также циркулирующий канал впускного трубопровода

IC26 - IC2A6
Циркуляция, имеется независимый компонент, предусмотрен также циркулирующий канал впускного трубопровода

IC17 - IC1A7
Циркуляция при помощи отдельного и независимого компонентов, а также системы подачи охлаждающей жидкости под давлением

IC410 - IC4A1A0
Свободная конвекция, система закрытого типа

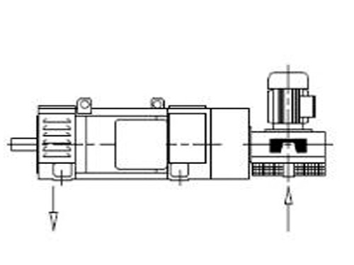
IC411
Самовентиляция, в конструкции двигателя предусмотрены ребра охлаждения, циркуляция воздуха реализована при помощи установки внешнего вентилятора

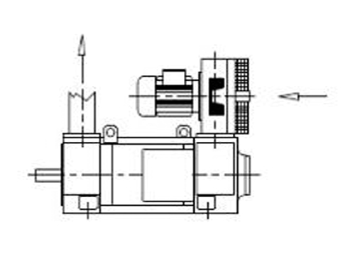
IC416 - IC4A1A6
Имеется вспомогательная вентиляция. Независимый внешний вентилятор находится внутри крышки вентилятора

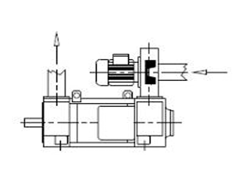
IC418
Внешняя вентиляция. Закрытый корпус с ребрами охлаждения

IC36 - IC3A6
Циркуляция производится при помощи независимого компонента, имеется циркуляционный трубопровод для впускных и выпускных каналов

IC37 - IC3A7
Циркуляция производится при помощи отдельного и независимого компонентов, имеется циркуляционный трубопровод для впускных и выпускных каналов

IC0066 - IC6A6A0
Стационарный теплообменник, циркуляция при помощи независимого компонента

IC0666 - IC6A6A6
Стационарный теплообменник, циркуляция с помощью независимого компонента. Воздушное охлаждение

ICW37A86 - IC8A6W7
Машинный теплообменник, циркуляция при помощи независимого компонента. Водяное охлаждение

IC86W
Водяная клетка. Имеется клапан, регулирующий расход воды


